malandrino caffé bar, donostia
junio 2016
fotografías: Jorge Allende
(+)
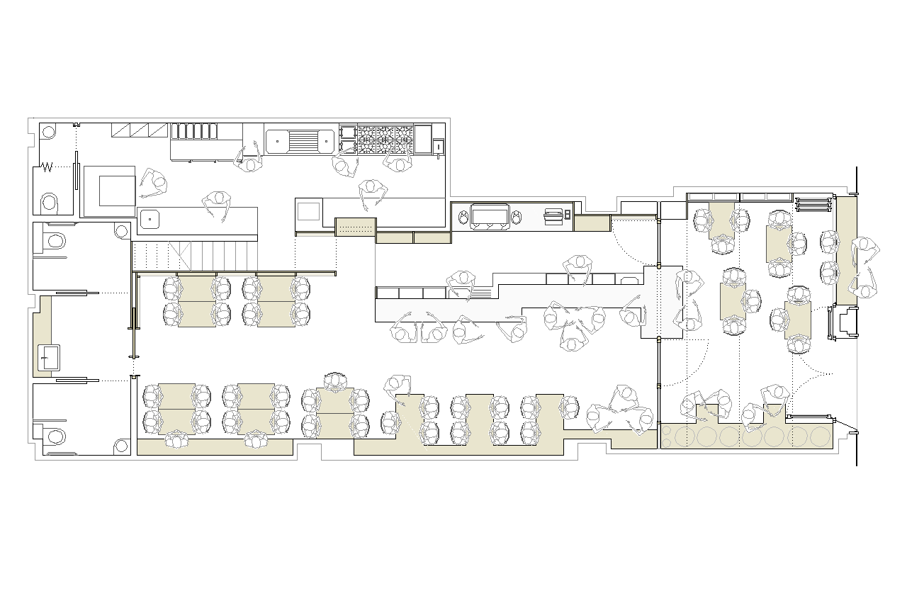
Cuatro años después de montar el primer bar Malandrino en la ciudad, sus promotores, Marco Marradi y Paolo Ghezzi, deciden abrir un nuevo local en el barrio del antiguo. Un proyecto que nace con la intención de mantener la principal seña de identidad del local, crear un ambiente joven, cálido y acogedor donde degustar sus deliciosas y auténticas especialidades italianas.
Nuestra propuesta busca abrir el local a la calle invitando a entrar. En un clima templado pero lluvioso como el de San Sebastián, apostamos por crear un singular espacio de terraza cubierta a modo de porche con una pérgola de madera por la que trepan enredaderas potenciando la sensación de jardín exterior.
Una vez dentro la arquitectura pretende acompañar a la filosofía del negocio: tradición y materia prima. Para dar vida y personalidad al espacio jugamos combinando 3 materiales nobles tradicionales que se muestran desnudos: hierro, ladrillo caravista y madera de pino. Soldaduras al natural y estructuras vistas en la búsqueda de una sinceridad constructiva que se aleja de ornamentos innecesarios y busca lo esencial con pocos elementos pero sin renunciar a una imagen moderna, joven, cálida y natural.
Las lámparas colgantes del comedor del fondo se han modificado con un sistema de fabricación propia. Con unas poleas y unas botellas de vinagre llenas de arena permiten modificar su altura fácilmente y convertir el comedor en pista de baile.