proyecto y obra: 2017
superficie útil: 90 m²
fotografías: pura arquitectura
(+)
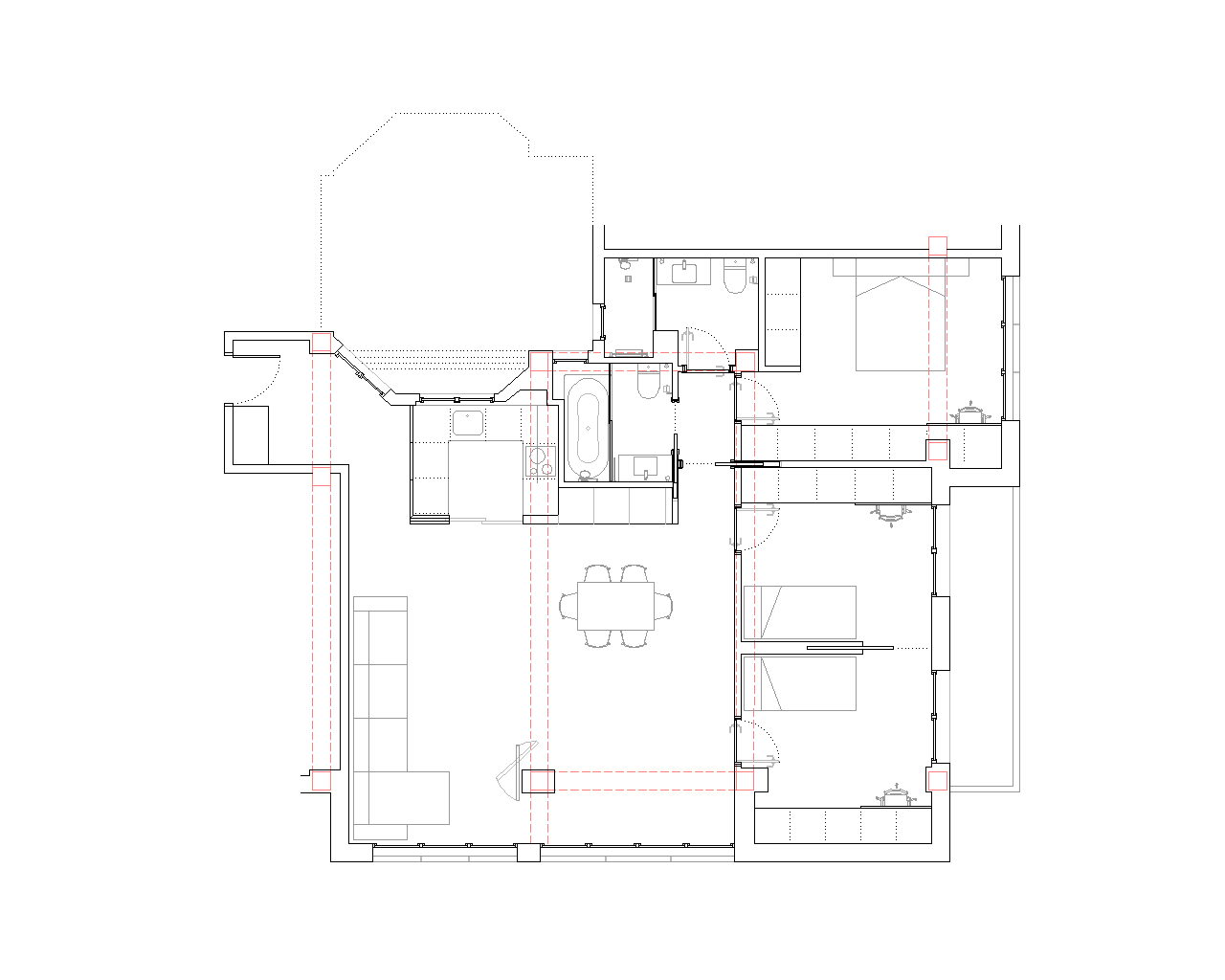
Una pareja con 2 mellizas pequeñas y una premisa: amplitud. Buscaban un gran espacio diáfano polivalente donde poder estar los 4 y que las niñas pudieran disfrutar.
Propusimos reducir la cocina para maximizar el espacio de estar. La cocina se convierte en un cubículo de 4.5m² que invade la zona de estar ocultando en un armario alto la despensa y el frigorífico. Un cierre móvil acristalado de madera de roble permite independizar los 2 ambientes.
Así, se libera un espacio casi cuadrado de 35 m² orientado al sur con un generoso frente acristalado a la calle.
Los dormitorios se alinean en la fachada este para disfrutar del sol de la mañana.