zarautz
concurso: 2018
60 ALOJAMIENTOS DOTACIONALES, SALBERDIN, ZARAUTZ
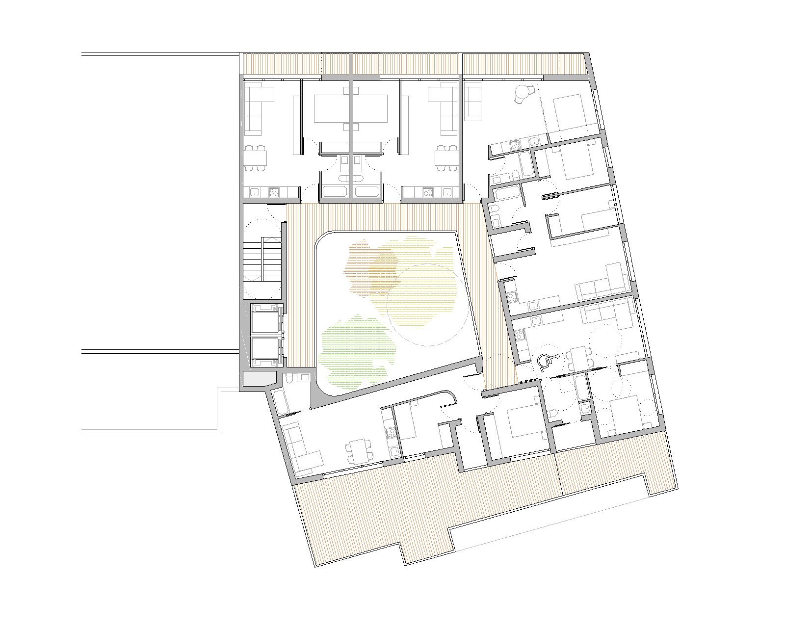
Con el objetivo de maximizar el número de viviendas, la edificación vuela 1.25m perimetralmente aprovechando el vuelo máximo permitido por las normas urbanísticas del Plan Especial del área 10-2-OR Salberdin. Este mecanismo aumenta el perímetro de fachada y permite disponer las 60 viviendas solicitadas en las bases.
Para no superar la edificabilidad establecida el edificio cuenta con un patio central en torno al cual se organizan las 60 viviendas a las que se accede a través de unas galerías abiertas. Las comunicaciones se resuelven con un único núcleo de comunicaciones con 2 ascensores y una escalera protegida. Este patio, vertebrador de las circulaciones, está abierto al sur para maximizar su soleamiento y ofrecer vistas al exterior y potenciar el diálogo dentro-fuera. El patio será ajardinado en la planta primera de viviendas ofreciendo a los habitantes un agradable espacio comunitario de encuentro.
El núcleo de comunicaciones se coloca en la medianera dejando para las viviendas las 3 fachadas libres del volumen (norte, este y oeste). Las viviendas se colocan en U alrededor del patio con todos los salones y dormitorios abiertos al exterior y a las vistas.
Sobre las puertas de acceso se dispone unas ventanas practicables al patio que garantizan la ventilación cruzada, como mecanismo eficiente de ahorro energético.
Las viviendas orientadas este-oeste cuentan con unas terrazas corridas de 1.25m de profundidad en las que se encuentran los tendederos. Las orientadas a norte no cuentan con terraza y tienen sus tendederos abiertos al patio.
TIPOLOGÍA
El reducido tamaño de las viviendas (36.25 m2 útiles en la vivienda tipo), reclama un uso intenso de todo el espacio de la vivienda y una concepción espacial unitaria. Todas las viviendas tienen un espacio unitario de salón-comedor-cocina y un dormitorio totalmente abiertos al exterior, con iluminación y ventilación natural. El baño y el mobiliario de cocina se adosan junto a la pared del patio agrupando núcleos húmedos y simplificando las instalaciones.
La relación de la vivienda con el exterior es muy intensa gracias a los grandes ventanales propuestos, que en el caso de las viviendas con terraza permiten ampliar la superficie de vivienda con estos espacios exteriores. En las viviendas se optimiza el uso de la luz natural y el uso de colores claros.














