bar restaurante del CHEF Bruno Oteiza, Calle usandizaga 17, Donostia
fin de obra: diciembre 2018
fotografía: pura arquitectura
(+)
Bruno Oteiza es un destacado cocinero donostiarra que ha desarrollado la mayor parte de su exitosa carrera profesional en México. GATXUPA es un proyecto personal con el que vuelve a su ciudad y a sus orígenes con su cocina gatxupa, mezcla de mexicana y vasca y fruto del bagaje adquirido a lo largo de todos estos años.
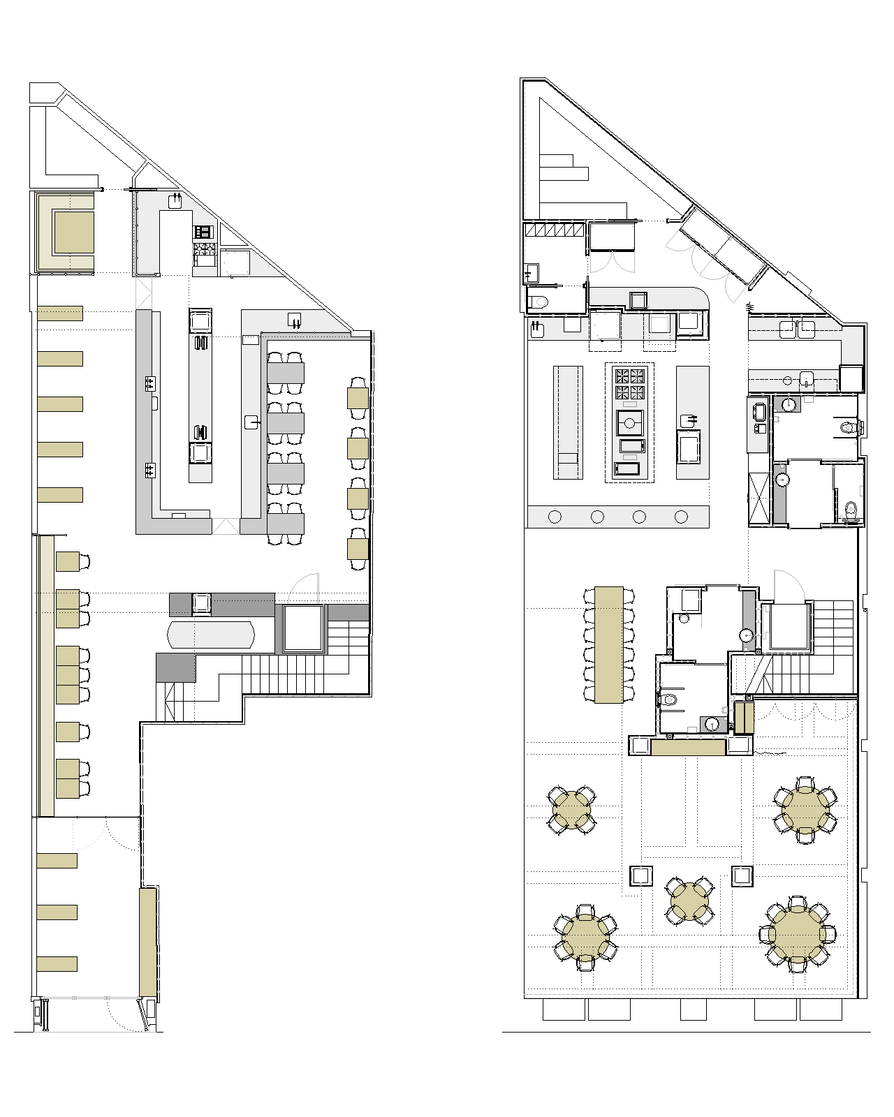
El concepto de local abraza desde un principio el espacio que proporciona el local de dos plantas creando 2 ambientes totalmente diferenciados.
En la planta de arriba, una barra de bar en U es la protagonista absoluta del espacio. El lado izquierdo de esta barra es una barra donostiarra tradicional con cañeros, vinos y pintxos y una zona al fondo con cocina a la vista. La parte derecha de esta barra es un elemento dinámico y versátil de show-cooking sobre el que se apoyan unas mesas altas para comer vinculadas al espacio de barra y cocina.
El juego de los azulejos rojos, verdes o blancos diferenciando ambientes y zonas hace un guiño a las banderas mexicana y vasca, las 2 casas de Bruno Oteiza.
En el sótano se plantea un comedor exclusivo solamente para 28 comensales con cocina a la vista en el que el Chef desarrolla diferentes formas de cocina en un menú degustación. Este espacio nace con ambición de versatilidad para poder ofrecer posibilidades diversas como presentaciones, reuniones, celebraciones etc.