proyectos
estudio
premios y conferencias
contacto
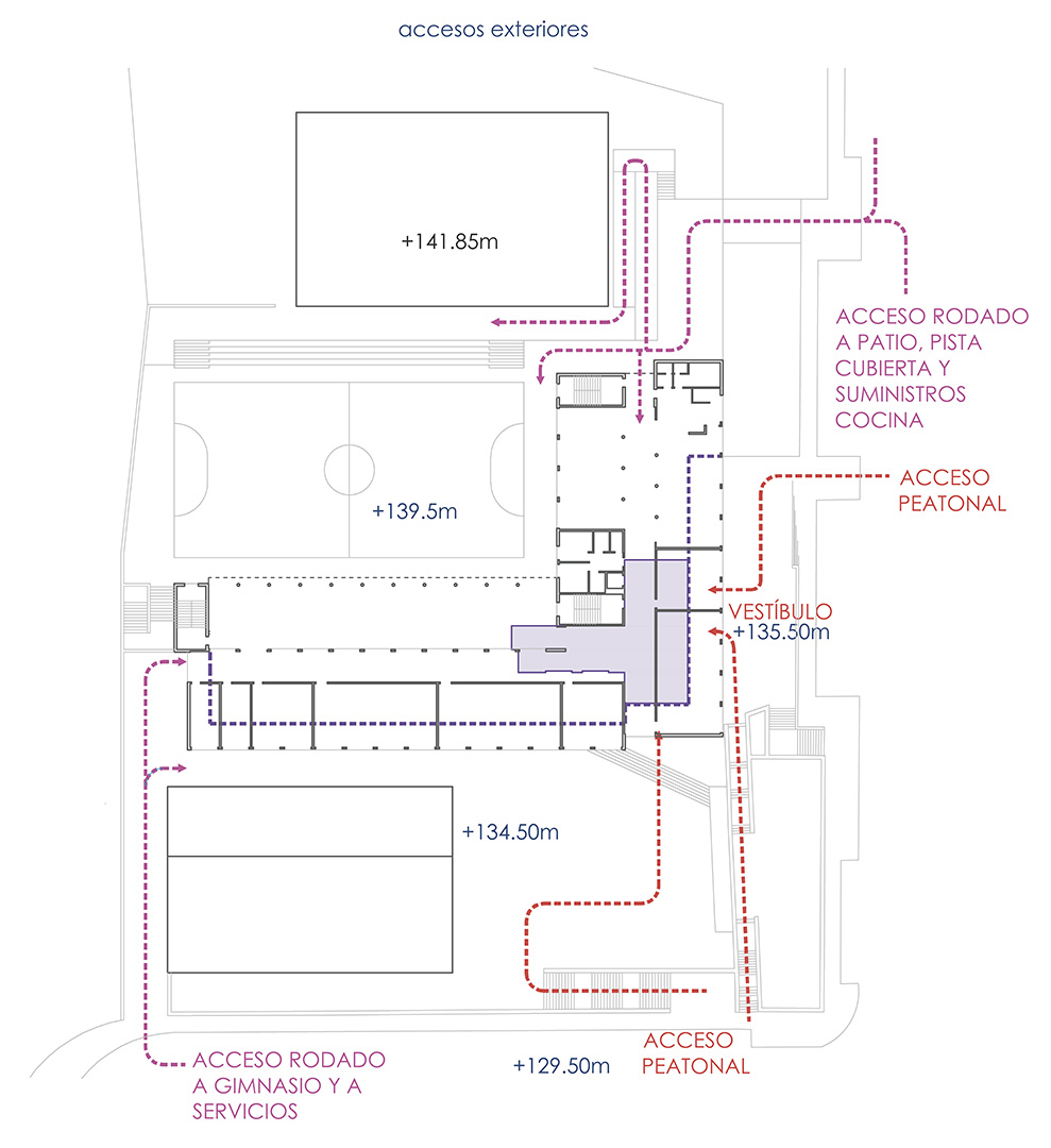
IES etxebarri BHI
Instituto de Educación Secundaria en Etxebarri
, Bizkaia
Concurso, julio 2019