bengolarra
¡ 3º premio !
Concurso para la reforma del edificio BENGOLARRA. Ayuntamiento de ZIGOITIA.
Junio 2020
lema: ZUHAITZ ARTEAN
No hay duda de que el privilegiado emplazamiento del edificio Bengolarra invita a abrirse al formidable parque en el que está situado y a potenciar la relación del usuario con la naturaleza más próxima y cercana. Es por ello que nuestra propuesta conserva la fachada actual a las piscinas y amplía el edificio en su fachada norte con una piel acristalada de muro cortina de madera que dialoga con los troncos verticales de los árboles existentes.
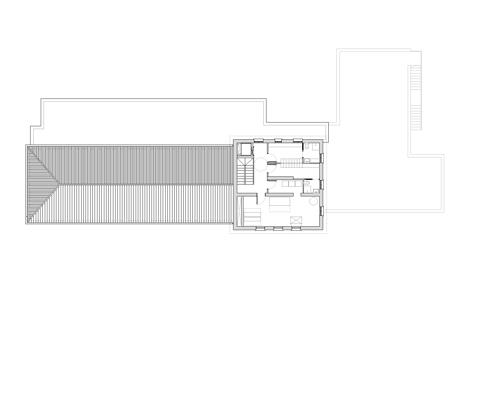
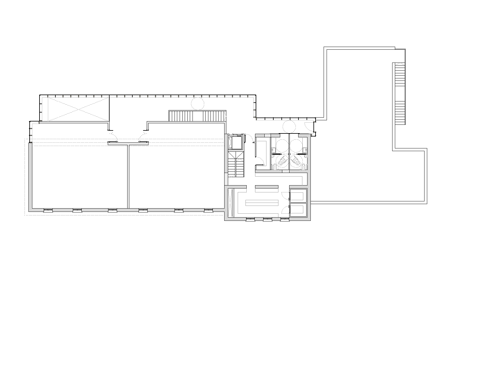
El acceso principal al edificio se sitúa en el lateral junto al frontón, facilitando el uso de los vestuarios por los usuarios del mismo. Piscinas, frontón y las 2 salas polivalentes de planta primera comparten los vestuarios situados en planta baja con acceso desde la fachada abierta al parque. Los vestuarios tienen una salida a las piscinas en la fachada sur resolviendo de esta manera las circulaciones “calzado-descalzo” sin cruces.
Todas las circulaciones del edificio se desarrollan en la pieza acristalada potenciando la presencia del parque en el edificio.
La propuesta es muy conservadora con el edificio actual en su fachada más urbana hacia el ayuntamiento y la carretera, demoliendo únicamente el ábside existente en planta baja para poder situar estratégicamente la pieza bar-restaurante como remate del edificio abierta al parque y a las piscinas simultáneamente.
Esta ubicación favorece la visibilidad del bar-restaurante desde la carretera principal y permite abrir totalmente el comedor al parque, potenciando la sensación de comer en plena naturaleza. La barra sirve también a la terraza situada en la piscina para que los usuarios del recinto en temporada de verano puedan disfrutar del establecimiento sin interferir con los comensales del bar-restaurante.
El establecimiento hostelero cuenta con un doble acceso, uno desde el edificio deportivo y otro acceso más principal desde el parque que permite que pueda funcionar independientemente con el resto del edificio cerrado. La cubierta de este elemento es una terraza donde se podrán realizar todo tipo de eventos.
La torre se mantiene intacta y se le da un uso de servicios que encaja perfectamente con su esquema estructural de muros de carga. Este elemento albergará el ascensor, los baños, la sala de instalaciones y los usos auxiliares del restaurante (cocina, almacén y vestuarios).















