torre de atotxa, donostia
proyecto: 2019
obra: 2020
fotografía: Biderbost
(+)
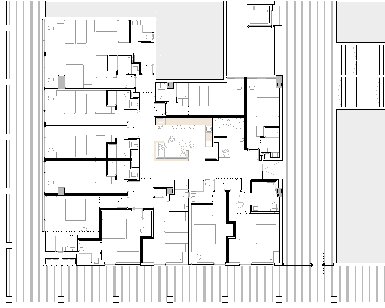
Cristina Enea Rooms se sitúa en los bajos de la torre de atotxa, un emplazamiento privilegiado en una zona en pleno desarrollo cultural y urbano, junto a la estación de tren y autobús y frente a Tabakalera, nuevo foco cultural de la ciudad. El proyecto cuida al máximo el diseño y trabaja el detalle de todos los espacios para ofrecer al visitante un hotel con habitaciones diferentes y atractivas.
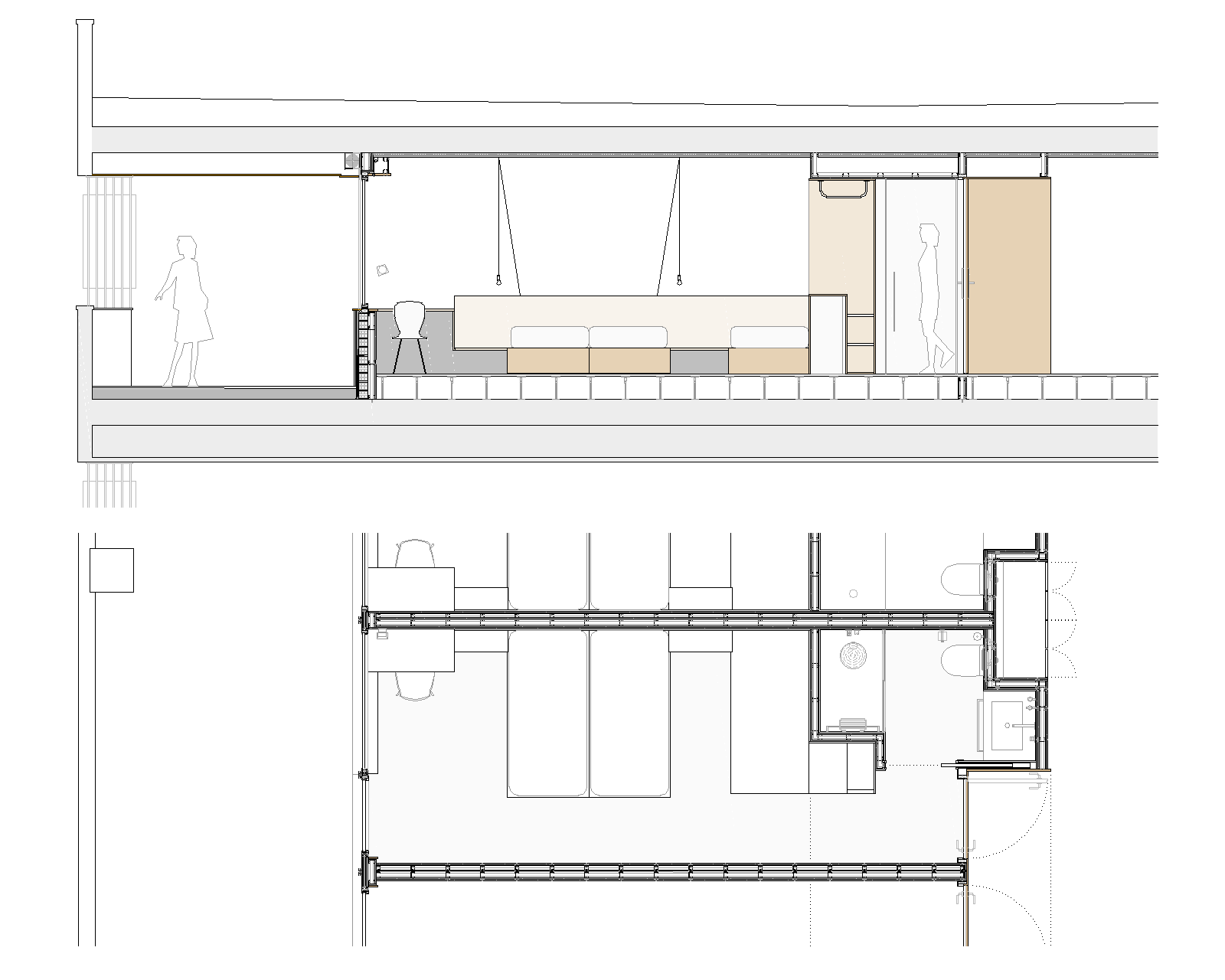
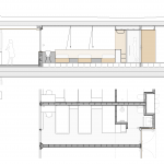
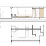
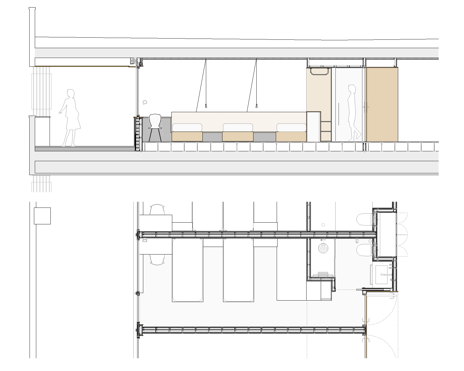
Las habitaciones se sitúan en el perímetro del local, con 10 habitaciones dispuestas en L aprovechando el frente de fachada hacia Duque de Mandas y hacia Tabakalera y 2 habitaciones orientadas al patio de acceso. El pasillo interior de distribución se amplía en la zona central del establecimiento en una zona de estancia común a disposición del huésped.
El local abusa del color blanco y de los tonos claros para optimizar la luz natural y el confort visual. Acompañan a este fondo neutro y claro elementos de pino natural que dan calidez al espacio. Se ha diseñado un mobiliario a medida adaptado a cada habitación con un sistema de camas móviles y mesillas desmontables que permiten una flexibilidad absoluta de la habitación para adaptarse a diferentes tipos de huésped.
En la fachada, la disposición y el ritmo de ventanas funciona como articulación de encuentro entre los materiales de suelo y techo de la torre de atotxa integrando la solución en el edificio existente. Unos rótulos luminosos en esquina sirven de reclamo al visitante.
En la fachada de la galería de acceso se ha dispuesto un mural inspirado en el parque cristina enea pintado por el artista local Enrique Sancho que recibe al huésped y destaca el establecimiento dentro de la galería.