siedlung de viviendas en pfullingen, alemania
“La buena arquitectura debiera ser una proyección de la vida misma.” Walter Gropius
(+)
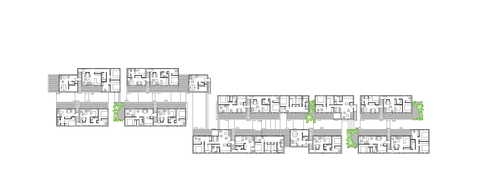
Un campo de árboles frutales en un terreno en pendiente. El proyecto propone habitar el terreno creando unas calles peatonales transversales a la pendiente del terreno alrededor de las que se desarrolle la vida del nuevo barrio adaptándose a la topografía del terreno.
– CALLE interna peatonal de ENCUENTRO y RELACIÓN.
Vivir en comunidad. Provocar relaciones y contactos en un país donde la vida exterior no es algo tan común como en los países mediterráneos. Elemento central peatonal y comunitario de intercambio y comunicación. Relaciones visuales, verbales, contactos entre vecinos.
– PRIVACIDAD DE LAS VIVIENDAS
El acceso a todas las viviendas se desarrolla desde la calle central. Las viviendas de planta baja se desarrollan totalmente abiertas a un jardín privado y las de planta superior a una terraza corrida sobre la calle.
– HETEROGENEIDAD.
Ofrecer gran variedad de situaciones y tipos de vivienda, como respuesta adecuada a la heterogeneidad e individualismo actual. Integrar grupos sociales diversos y patrones de familia diferentes.
– FACHADAS:
Extrema sencillez, aberturas proporcionales que se suceden rítmicamente a lo largo del muro comunitario que enlaza y unifica los diferentes módulos de vivienda. La riqueza del alzado se debe únicamente a las diferentes configuraciones ofrecidas por las tipologías y los desajustes provocados por la topografía.