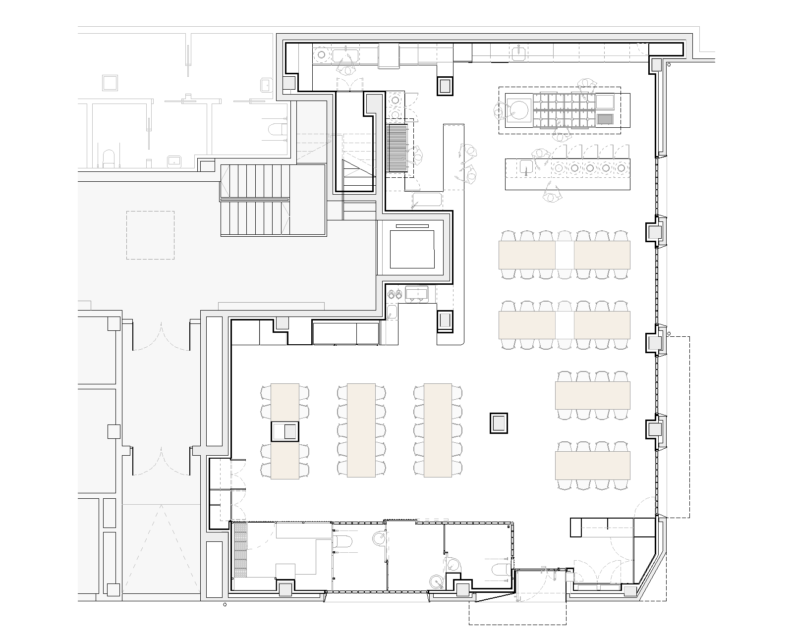
urumeaberri GKE
sociedad gastronómica

astigarraga

proyecto: 2021

obra: 2022-23

fotografía: biderbost photo