san francisco 26, donostia
proyecto: 2021 _ obra: 2022-23
fotografía: biderbost photo
(+)
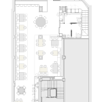
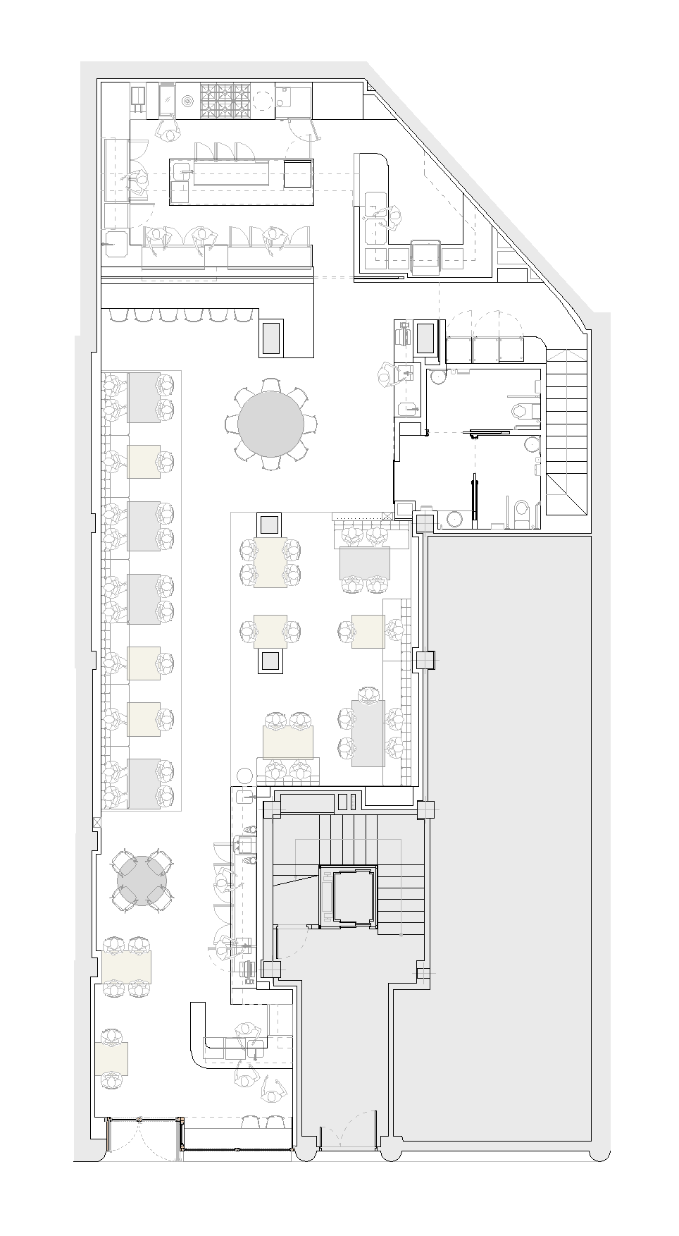
En el restaurante ELOSTA los espacios de los cocineros y camareros se funden con los de los clientes.
Una especie de contrabarra sin barra totalmente abierta al comedor y una cocina acristalada vinculada a una barra de sushi hacen que comensales, cocineros y camareros se mezclen buscando una interacción y conexión entre el personal y los comensales que completa la experiencia gastronómica.