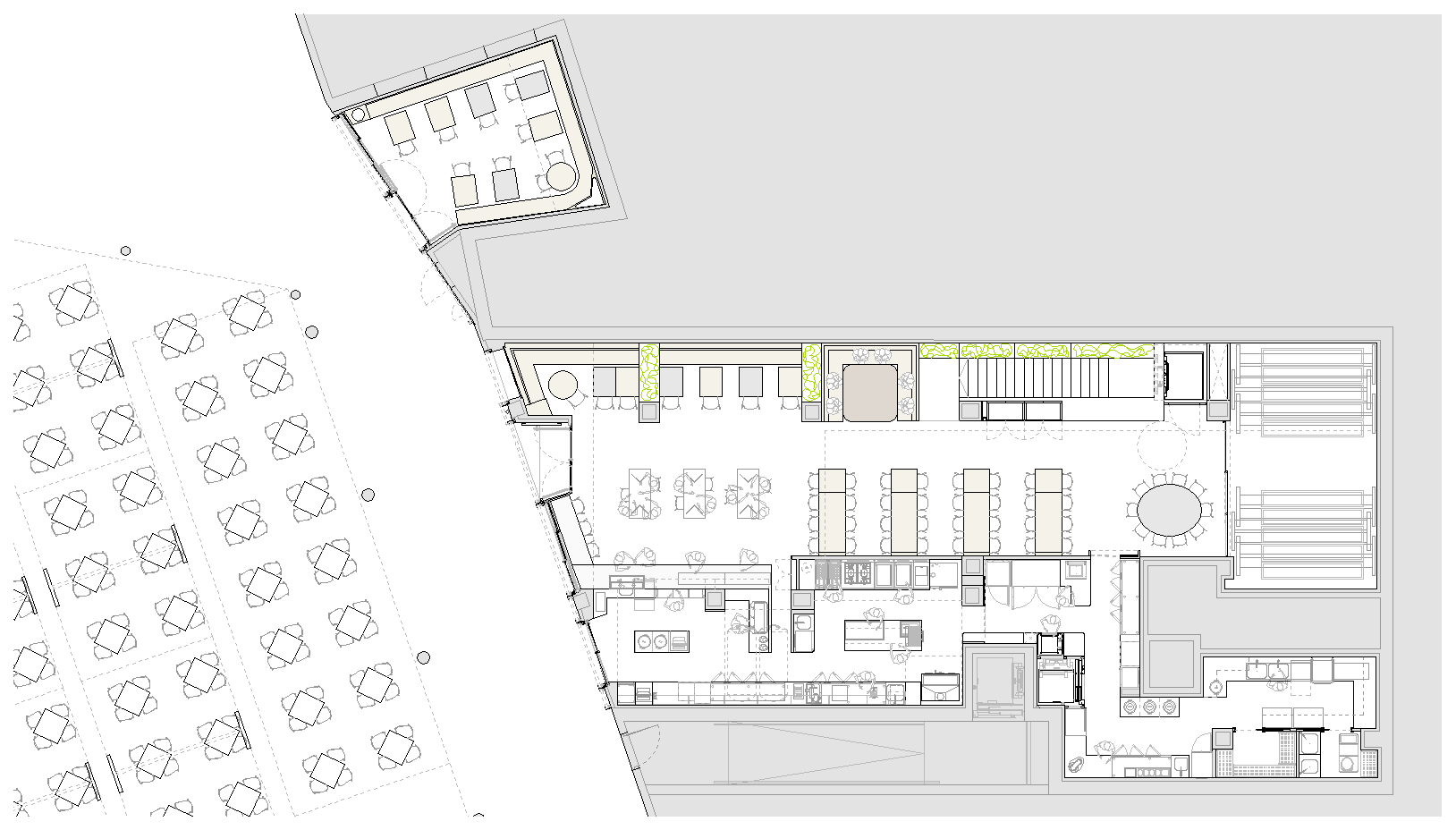
malecón, zarautz
proyecto: 2021 _ obra: 2022-23
fotografía: lur.eus
(+)
Cada proyecto debe ser único y debe tener alma propia.
En mandabide hemos intentado crear espacios que, al igual que la comida que ofrecen, cuenten cosas, transmitan sensaciones y creen experiencias. Hemos diseñado íntegramente un espacio a medida buscando el equilibrio entre funcionalidad y estética.