superficie útil: 40 m2 + 12.5 m2
obra: 2010
fotografías: francisco berreteaga
(+)
Villa Piedad era una vivienda bifamiliar de 1950 que con el tiempo segregaron en 8 diminutos pisos. El proyecto se limita a medio bajocubierta, antiguo desván de la vivienda. Techos bajos y un espacio compartimentado en 5 minúsculas estancias con un agobiante distribuidor central. Una distribución convencional adaptada a un espacio mínimo.
Veredicto: demolición total. Incluida la cubierta, que estaba en un estado lamentable. Sin piedad. El resultado un espacio casi cuadrado de 40 m2 con 3 fachadas y una cubierta: 4 planos de contacto con el exterior. Las 7 veluxes de la cubierta completaron el queso gruyere.
Habitar el volumen. Transformar el plano en volumen habitable y abarcar el espacio. Este ha sido el obsesivo objetivo del proyecto.
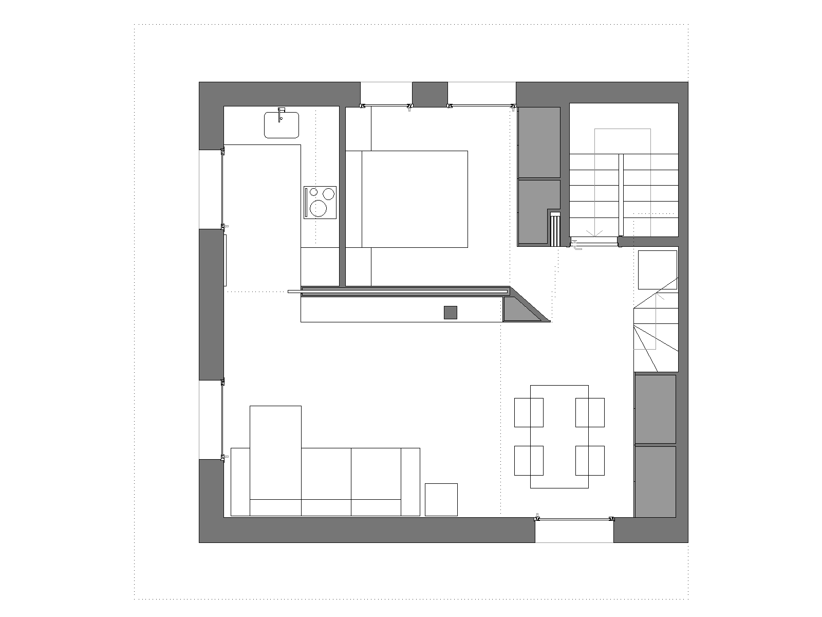
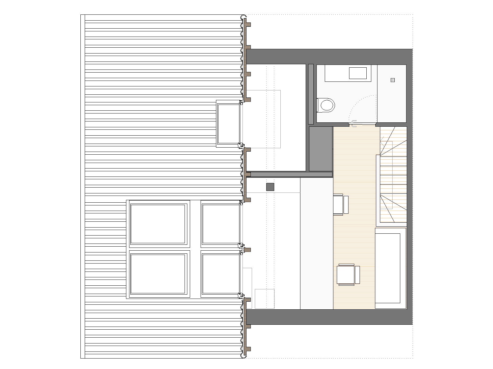
Los espacios se organizan en torno a un tabique central y el baño está colgado sobre la escalera comunitaria. Como en la casa de Tati, todo comunica.
Se reservan las vistas sobre la ciudad para el espacio principal. Vivir y trabajar en dos alturas de un mismo espacio. Conectados e independientes entre sí. El estudio en la entreplanta se transforma en dormitorio cuando se quedan amigos.
La cocina se abre al este para disfrutar del sol de la mañana y amplia lateralmente la zona de estar. El dormitorio principal está en la zona más tranquila de la casa, protegido de las vías del ferrocarril.
Las puertas se esconden. Cada hueco es un armario. Cuenta cada centímetro.