residencia arangoiti
colaboración con estudio beldarrain
autor: estudio beldarrain
intervención: colaboración como arquitecta jefe de proyecto
fotografías: jesús martín
Ampliación de la Fundación Arangoiti, Beasain _ 1 unidad psicogeriátrica y 1 unidad de enfermos mentales
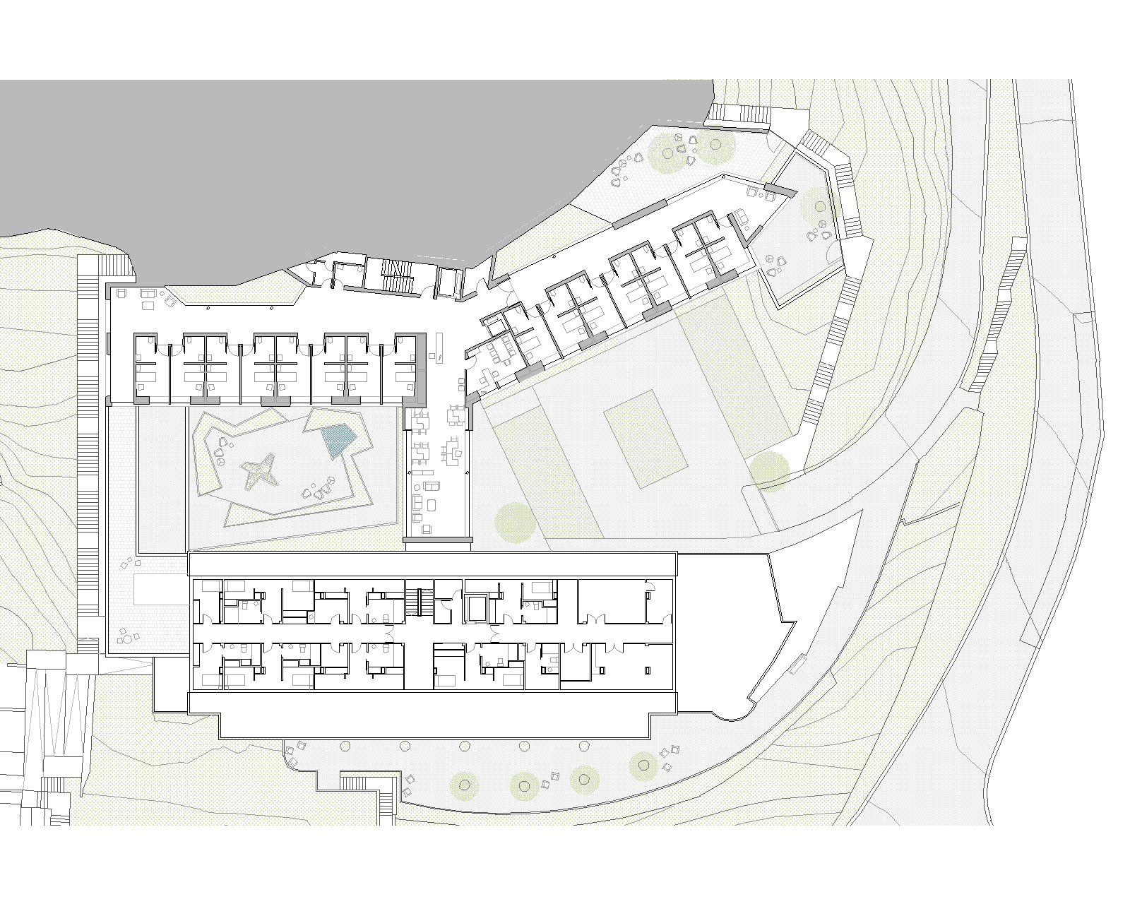
La edificación en ladera, a menudo produce incómodos espacios residuales entre edificios poco apropiados para un entorno con personas mayores. El proyecto pretende con el nuevo edificio configurar dos espacios exteriores que por su situación, su escala, su proporción y su condición horizontal hacen casi olvidar las dificultades que genera la ladera haciendo agradable y cómoda la relación del edificio con su entorno inmediato.
En la zona norte se crea, en primer lugar, una plaza de acceso de dimensión suficiente para que un autocar pueda acceder y maniobrar, así como para aparcar algunos coches. Este espacio no solamente resuelve el acceso rodado al edificio sino que dignifica la entrada en un cuerpo central que conecta los dos edificios con un amplio recibidor para visitas.
El segundo espacio exterior que genera el edificio, y sin duda el que más se disfruta desde el interior es un patio ajardinado de planta cuadrada que, a modo de claustro, organiza a su alrededor los usos de planta baja y una buena parte de las habitaciones. Se crea con él un espacio de ocio y de paseo al aire libre, que por su condición introvertida hace sentirse protegidos a los residentes y permite con poco esfuerzo del personal de la residencia crear condiciones de seguridad óptimas.
El edificio se empotra en la ladera orientando todas sus habitaciones al sur y al este y liberando entre él y el edificio existente los espacios mencionados. En el encuentro con la ladera se abren dos estrechos patios que acompañan e iluminan los espacios de deambulatorio, al tiempo que dotan al edificio de una muy eficaz ventilación cruzada. Uno de ellos, el situado más al norte se abre a las vistas en esta dirección, albergando de forma escalonada dos espacios exteriores íntimamente relacionados con la seguridad de cada una de las plantas de habitaciones.
La planta baja alberga una zona de recepción común para el edificio nuevo y el preexistente, así como diversas áreas de estancia y de atención del conjunto de la residencia.
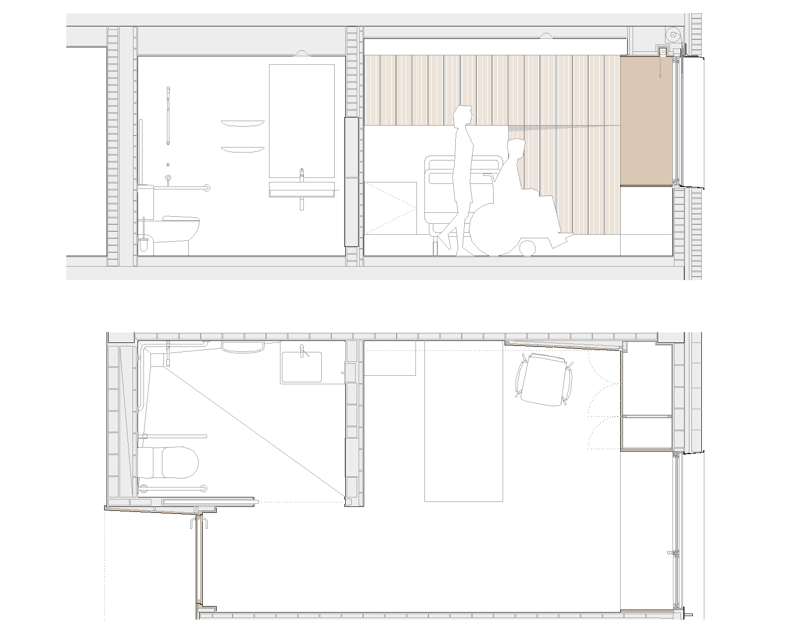
Las dos plantas superiores son muy similares. En la planta primera se ubicará un módulo psicogeriátrico y en la segunda un módulo de enfermos mentales con acceso independiente desde el exterior. Cada módulo consta de 15 habitaciones individuales y una zona de comedor y de actividades en el ala central, así como de una generosa zona de deambulatorio. El hecho de que a menudo los residentes permanezcan en el módulo durante todo el día por atención a su seguridad personal, nos ha llevado a poner especial cuidado en dotar al deambulatorio de zonas de estar en sus extremos relacionadas con el exterior y de un pequeño jardín, cada uno en el que puedan salir al exterior sin abandonar la protección del recinto del módulo.




















