sociedad gastronómica
riberas de loiola
proyecto: 2015 _ obra: 2017
fotografías: biderbost photo
(+)La nueva sociedad de Riberas de Loiola no puede ser una sociedad gastronómica más de la ciudad. Proponemos repensar el concepto de sociedad que todos conocemos y buscar una imagen y un funcionamiento acorde con el barrio: un barrio joven, lleno de vida y famoso por sus plazas, unas plazas repletas de gente que disfruta de las zonas de ocio que ofrece el barrio.
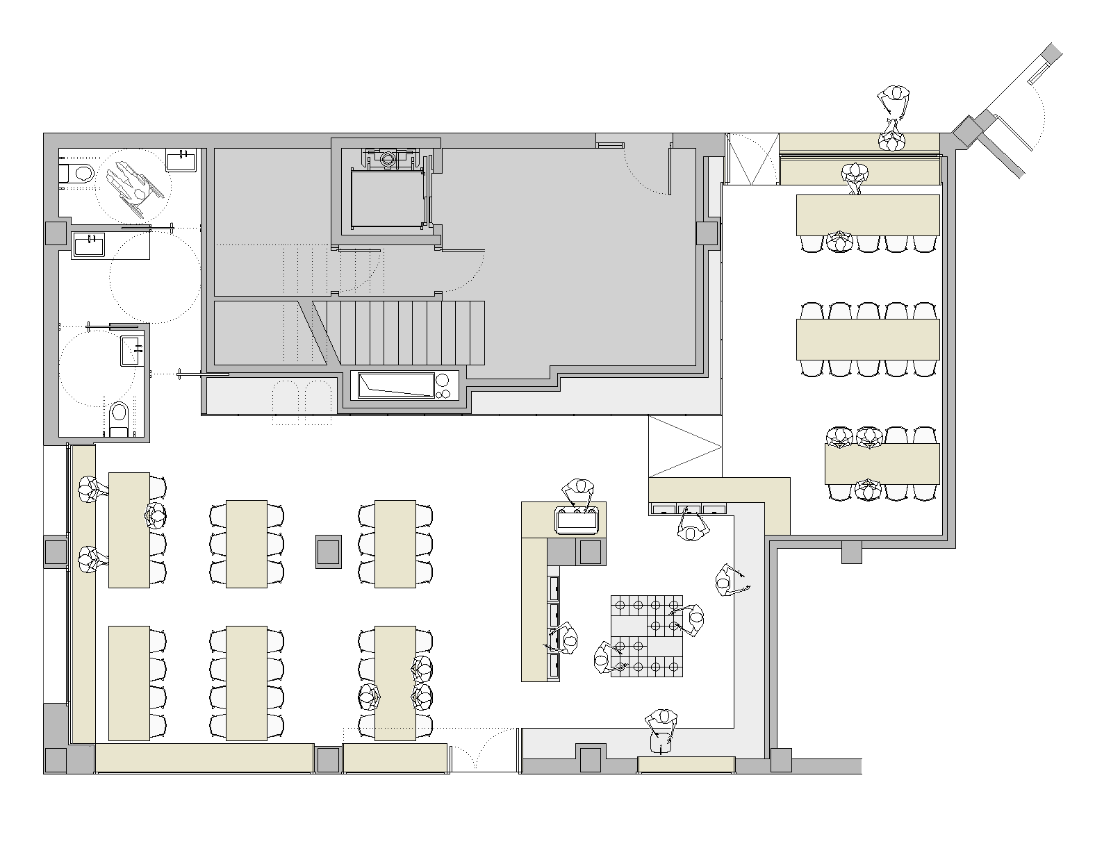
La cocina es la pieza principal de esta nueva sociedad. Un espacio totalmente abierto que toma protagonismo y hace de rótula entre los 2 comedores potenciando la comunicación de los espacios.
El hecho de tener 2 comedores, uno para 44 comensales y otro más pequeño para 28, permite mayor versatilidad en el uso. El de menor tamaño está directamente relacionado con la plaza de paloma miranda y tiene un acceso independiente desde el porche. Al comedor grande se accede directamente desde la calle Nemesio Etxaniz y disfruta de una esquina soleada y acristalada.
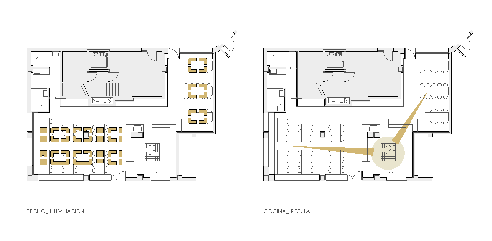
Ambos comedores están totalmente comunicados con la cocina. Una amplia cocina con una isla central de 4 cuerpos y una encimera perimetral que termina en 2 barras que dan servicio a ambos comedores. En el espacio de comunicación, el pasillo se ensancha en la zona próxima al pilar generando un espacio vinculado a la cocina pero fuera de ella perfecto para la preparación de cafés, de copas o la realización de las cuentas.
La pared del portal anexo se forra con un empanelado blanco para generar un profundo armario en L que pasa desapercibido pero ofrece una gran capacidad de almacenamiento (guardarropa, vajilla, bodega…).
El local abusa del color blanco y de los tonos claros para optimizar la luz natural y el confort visual en un clima poco luminoso en invierno, como el de San Sebastián. Acompañan a este fondo neutro y claro elementos de pino natural que dan calidez al espacio.
En el techo, la iluminación se resuelve con unas lámparas de madera que bañan la estancia con luz cálida y que reproducen en el techo de la sala grande fielmente la planta del barrio, con sus características manzanas. Porque esta es la sociedad de Riberas de Loiola. El barrio de las plazas.

































